Rysunek techniczny ćwiczenie 1.1

Cel ćwiczenia:

  • Doskonalenie umiejętności odwzorowania przestrzennej bryły na rzutnie prostokątne (widoki).

  • Zrozumienie i praktyczne zastosowanie zasad wykonywania przekrojów technicznych.

  • Kształcenie precyzji i staranności w tworzeniu rysunku technicznego.

  • Praktyczna praca z programem Inkscape jako narzędziem do tworzenia rysunku technicznego.

Zadanie:

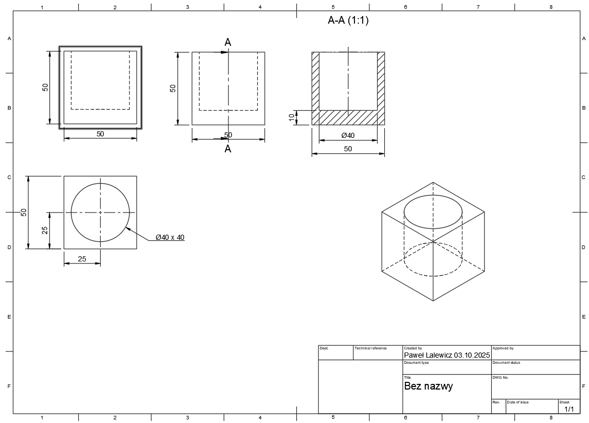
  1. Przedmiot rysunku: Narysuj w rzutach prostokątnych i w przekroju prostą bryłę – sześcian o boku 50 mm z okrągłym, przelotowym otworem na wylot, przechodzącym przez środek każdej ściany. Średnica otworu wynosi 40 mm.

  2. Wymagane rzuty i przekrój:

    • Widok z przodu (zaznaczony strzałką i literą A) – powinien ukazywać kwadrat z kołem.

    • Widok z góry – umieszczony nad widokiem z przodu.

    • Widok z prawej strony – umieszczony po prawej stronie widoku z przodu.

    • Przekrój A-A – wykonany płaszczyzną tnącą przechodzącą pionowo przez środek bryły (równolegle do płaszczyzny rzutni bocznej). Umieść go z prawej strony widoku z prawej strony lub w dogodnym, wolnym miejscu rysunku.

  3. Wykonanie w programie Inkscape:

    • Warstwy: Użyj minimum trzech warstw:

      • Szkic – dla pomocniczych linii konstrukcyjnych (kolor szary, przerywane).

      • Kontur – dla głównych, grubych linii konturowych widocznych krawędzi.

      • Kreskowanie – dla linii kreskowania przekroju.

    • Narzędzia: Wykorzystaj narzędzia: ProstokątOkrąg/ElipsaOłówek/Bézier (do rysowania linii), Wskaźnik (do zaznaczania i edycji), Linijki i prowadnice (do precyzyjnego rozmieszczenia rzutów).

    • Kreskowanie: Przekrój wypełnij standardowym kreskowaniem (np. pod kątem 45°), używając narzędzia Wypełnienie wzorcem.

    • Linie:

      • Linie konturowe widoczne: ciągłe, grubość 0.5 mm.

      • Linie krawędzi niewidocznych: kreskowe, grubość 0.25 mm (jeśli będą potrzebne do zaznaczenia krawędzi otworu w rzutach).

      • Linie osiowe i pomocnicze: ciągłe, cienkie, kolor szary, grubość 0.1 mm.

      • Linia przekroju (na widoku z przodu): ciągła, gruba, z grubymi kropkami na końcach, ze strzałkami i literami A.

    • Wymiarowanie: Dodaj podstawowe wymiary bryły (bok sześcianu, średnica otworu).

Wskazówki:

  • Pamiętaj o zasadach zgodności rzutów – punkty i linie muszą się przenosić pomiędzy widokami za pomocą linii pomocniczych.

  • W  widoku z prawej strony otwór będzie widoczny jako prostokąt (wynik przecięcia walca z płaszczyzną).

  • przekroju A-A zobaczysz przekrój ściany bocznej (prostokąt) z widocznym przekrojem otworu (prostokąt). Pamiętaj, że w przekroju nie kreskuje się otworu, tylko materiał bryły wokół niego.

Was this helpful?

0 / 0